0
Skip to Content
Linsey Fisher
Portfolio
Resume
Contact
Open Menu
Close Menu
Linsey Fisher
Portfolio
Resume
Contact
Open Menu
Close Menu
Portfolio
Resume
Contact
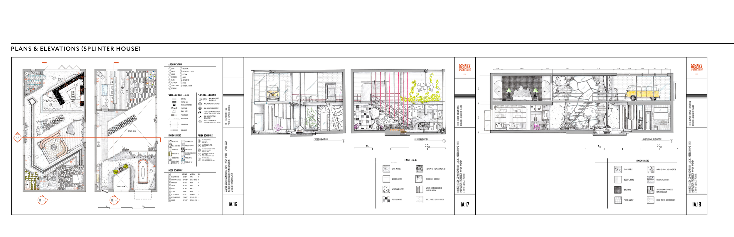
Residential Renovation // Single-Family / Northeast Los Angeles
Splinter House
Previous
Previous
Destination Expo
Next
Next
Cueva