0
Skip to Content
Linsey Fisher
Portfolio
Resume
Contact
Open Menu
Close Menu
Linsey Fisher
Portfolio
Resume
Contact
Open Menu
Close Menu
Portfolio
Resume
Contact
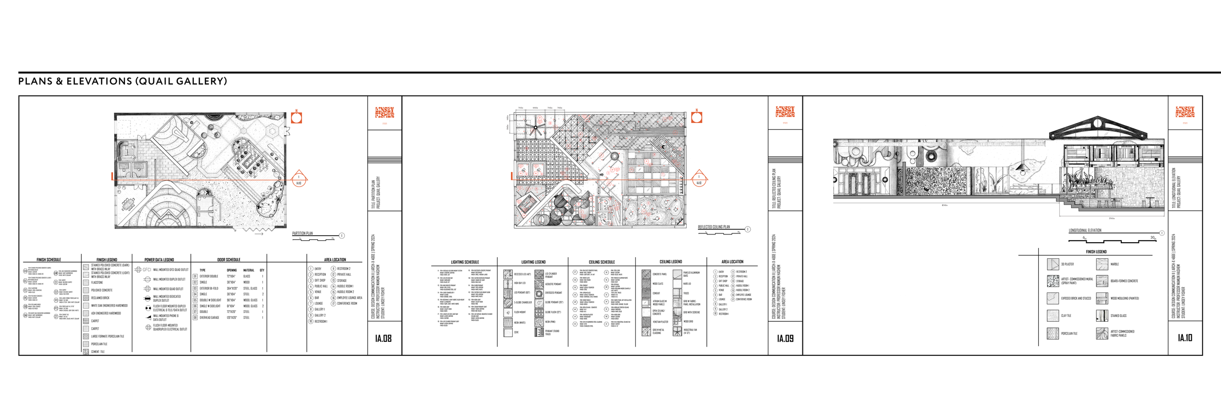
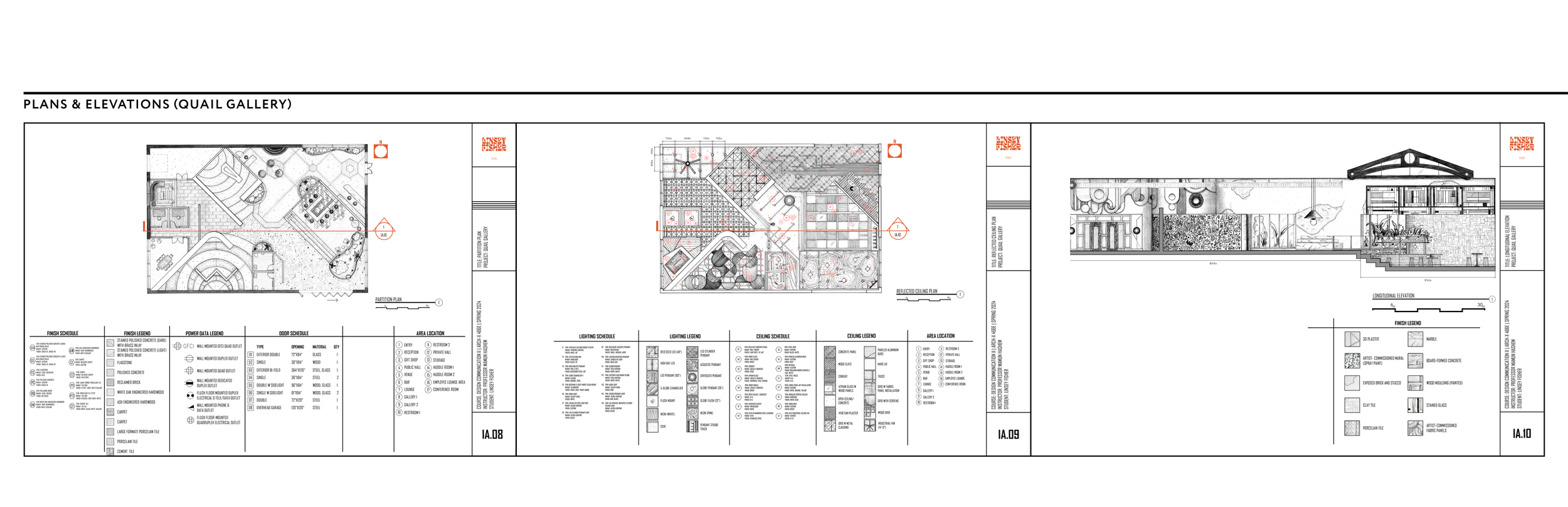
Adaptive Reuse // Exhibition & Venue Space / Downtown Los Angeles Arts District, CA
Quail Gallery
Previous
Previous
To Live & Work in LA
Next
Next
Destination Expo