0
Skip to Content
Linsey Fisher
Portfolio
Resume
Contact
Open Menu
Close Menu
Linsey Fisher
Portfolio
Resume
Contact
Open Menu
Close Menu
Portfolio
Resume
Contact
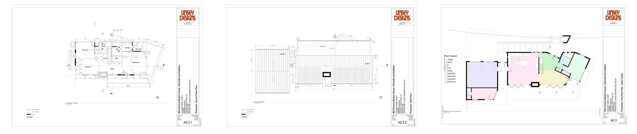
Residential // Single-Family Dwelling & ADU / Los Angeles, CA
A Mid-Century Modern Remodel & Addition
Previous
Previous
Cueva
Next
Next
Foundational Work